Here are the notes for July 2020.
The notes of our previous meetings are available on our monthly notes page.
Latest Notes
Here are the notes for July 2020.
The notes of our previous meetings are available on our monthly notes page.
Latest Notes

Fingal county council has pedestrianised New Street for a 10 week pilot project. However, many residents have expressed concern that the pedestrianisation of New Street will result in alcohol consumption on the street. The Malahide Community Forum wrote to an Garda Siochana seeking reassurance. We received the following reply from Superintendent Gerard Donnelly.
“I can confirm that I as District Officer and the Licencing Inspector for this District met with Fingal County Council and Representatives of local Publicans on 24th June 2020 to reiterate An Garda Siochana’s stance that the serving and consumption of alcohol on New Street, Malahide will not be permitted. All parties concerned were in agreement with this stance. This situation will be monitored to ensure compliance.“
You may read the full text of our query and Superintendent Donnelly’s reply here.
If you observe law breaking of any nature, please let the Gardai know. The Malahide Garda station phone number is: (01) 666 4600

We’re fortunate in Malahide to have a very active Tidy Towns committee that works tirelessly to keep our village looking beautiful and regularly wins Tidy Town awards.
The cancellation, due to Covid-19, of this year’s Tidy Towns competition has not dampened the enthusiasm of our Tidy Towns volunteers, as witnessed by the beautiful shrubs at the triangle near Malahide Tennis club and many other projects around the village.
The Malahide Community Forum and Malahide Tidy Towns share the objective of making Malahide an even better place to live, visit, work and do business.
We believe that we can achieve even more by working together.
If you would like to get involved with Malahide Tidy Towns, please send an email to malahidett4@gmail.com.
If you would like to join the Malahide Community Forum – contact us.
Here are the notes for June 2020.
The notes of our previous meetings are available on our monthly notes page.
Time to have your say – where would you like additional bicycle parking in Malahide?

Fingal county council has ordered 400 bike racks, with 1/3 due to be installed this month (June 2020) based on suggestions from FCC staff, councillors, and the public. Locations already decided include Low rock.
What do you think? Perhaps at each park entrance (Estuary park, Robswall park, Malahide Demesne)? What about along the coast road – at Biscayne, Seapark, Island view etc.?
We’ll be asking for bike racks near local shops, to enable residents to stay local, shop local and shop by bike.
Let us know in the comments below – we will collate your feedback and pass it on to the council.

Family walking and cycling in Malahide Demesne
One silver lining of this challenging time is to see so many people out walking, jogging and cycling. We’re fortunate in Malahide to have Robswall Park (Paddy’s Hill), Malahide Demesne and Estuary Park, with lots of green spaces between. We need to share space with care as we walk, jog, bike and drive, respecting the needs of children, vulnerable and mobility impaired people.
When walking…
Let’s remember to drop to single file and observe 2 metres social / physical distancing.
When jogging…
In many of our parks, the council has cut grass paths around beautiful wild meadows. Where possible, let’s jog on the grass and leave paved paths for vulnerable and mobility impaired park users.
When biking…
Paths within our parks are “share with care”. When passing pedestrians from behind, let’s slow down, tinkle our bells from about 20 metres – smile and say hello.

Heading home after tennis lesson in Malahide Demesne
When driving…
We need to look out for people on bikes, especially children. Our parks provide safe places to cycle, but until we have segregated cycle lanes we all have to cycle on roads to get to our parks. Let’s slow down and give people on bikes plenty of space when overtaking. Let’s also think before we park – cars parked on footpaths make social distancing more difficult and cause serious issues for our mobility and visually impaired residents.

Young people cycling to Malahide Demesne over the railway bridge
Note: The Malahide Community Forum is working with Fingal County Council to link our parks and green spaces to enable residents and visitors to walk and cycle more safely between them. We’re also working on the development of walking / cycling routes to local schools, clubs and shops.
Here are the notes for May 2020.
The notes of our previous meetings are available on our monthly notes page.

Sign on Back Road Malahide – opposite entrance to Malahide Demesne
May 22nd was national slow down day.
Despite the lockdown, road deaths are higher this year than last – 56 people have been killed to date – 30% pedestrians. As the sign says: “Kill your speed – not our nannas”.
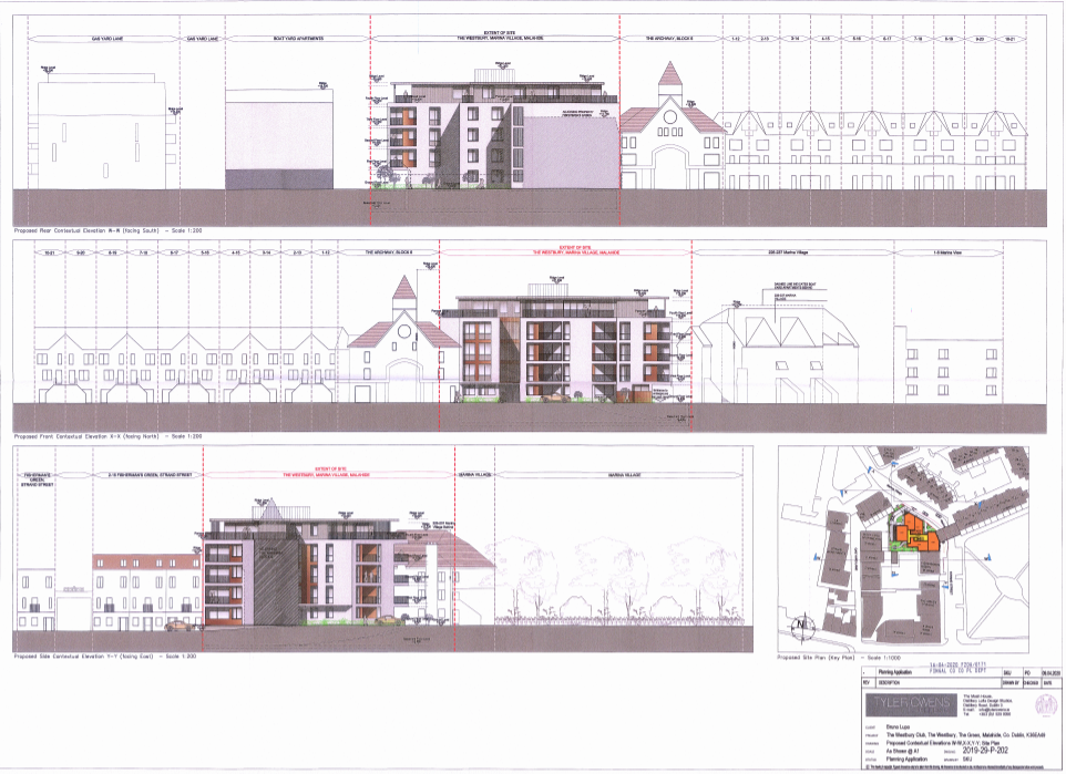
Do you have an opinion on the planning application for the site of The Westbury Club, The Green, Malahide for 26 apartments?
If so, the planning sub-committee of the Malahide Community Forum would like to hear from you (via our Contact Us page) as they are preparing a submission to Fingal County Council regarding this application. We include below images of the site layout and elevations of the proposed development.

Site Layout

Elevations

Front and Side (East) Elevation

Rear and Side (West) Elevation
You may view the planning application on the Fingalcoco planning page – Planning Application reference F20A/0171.
Here are the notes for April 2020.
The notes of our previous meetings are available on our monthly notes page.