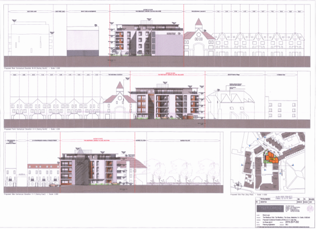
Do you have an opinion on the planning application for the site of The Westbury Club, The Green, Malahide for 26 apartments?
If so, the planning sub-committee of the Malahide Community Forum would like to hear from you (via our Contact Us page) as they are preparing a submission to Fingal County Council regarding this application. We include below images of the site layout and elevations of the proposed development.

Site Layout

Elevations

Front and Side (East) Elevation

Rear and Side (West) Elevation
You may view the planning application on the Fingalcoco planning page – Planning Application reference F20A/0171.